
Des plans sur mesure pour votre futur appartement
Parcourez les plans d'appartements idéaux de la Résidence Bel Canto, à Baie-Mahault, pour concrétiser votre vision. Que vous recherchiez un agencement familial, un design moderne, ou un espace optimisé, ces plans s'adaptent à vos aspirations et vous permettent de vous projeter sur votre future propriété.
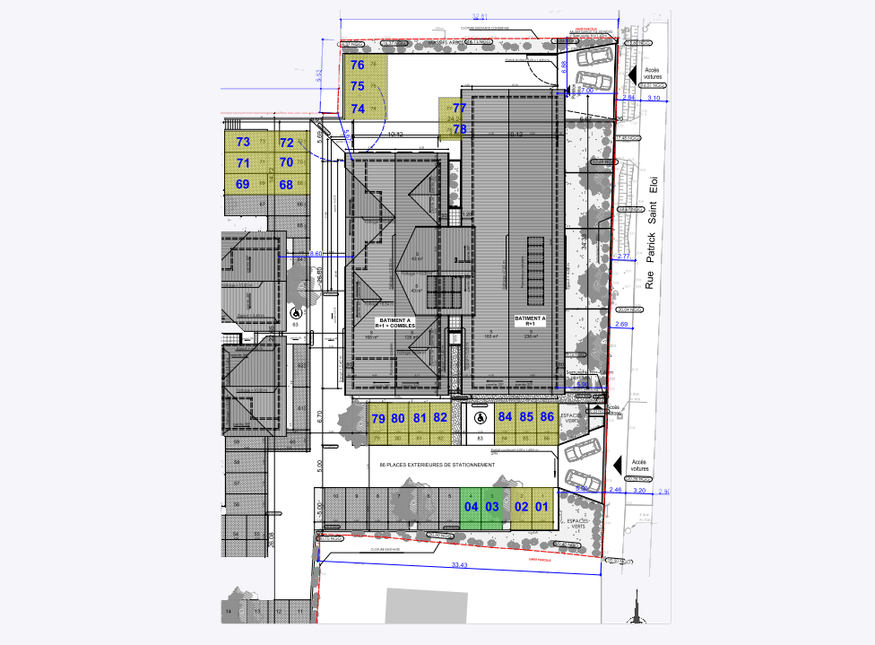
La conception
BEL CANTO est une résidence privée de standing située au sein du quartier résidentiel Destrellan. Elle est édifiée sur une magnifique parcelle de 7 175 m2 dont plus du tiers est aménagé avec un grand jardin tropical arboré.
✅ Découvrez les plans T3 de votre future résidence Bel Canto.
Appartement A001
Plan T3 A001 - Rez de chaussée Surface habitable 72,66 m2
[Plus surface Loggia : 25,73 m2]
Avec un parking simple extérieur et sécurisé. (PK01)
Prix : 301.000 €
Appartement A004
Plan T3 A004 - Rez de jardin Surface habitable 65,16 m2
[Plus surface Loggia : 18,08 m2] et surface jardin : 40,13 m2
Avec un parking simple extérieur et sécurisé (PK02).
302.500 €
Appartement A006
Plan T3 A006 - Rdc Surface habitable 61,92 m2
[Plus surface Loggia : 23,43 m2 et surface jardin : 58,38 m2]
Avec un parking double extérieur et sécurisé (PK70/71).
Prix : 312.500 €
Appartement A102
Plan T3 A102 - 1er étage Surface habitable 72,65 m2
[Plus surface Loggia : 25,73 m2]
Avec un parking double extérieur et sécurisé (PK68/69).
315.500 €
Appartement A202
Plan T1 A202 - 1er étage Surface habitable 21,82 m2
[Plus surface Loggia : 7,44 m2]
Avec un parking simple extérieur et sécurisé (PK76).
166.500 €
Plans Parkings liés aux appartements et Parkings supplémentaires
4 Parkings double couverts - Prix unitaire : 10.000 € - PK87/88, PK89/90, PK91/92, PK93/94.
1 Garage - Prix : 15.000 € - G96.
2 Parkings simples extérieur et sécurisés - Prix unitaire : 5.000 € - PK03 et PK04.

Des plans adaptés à des lieux exceptionnels pour s'épanouir
Nos plans sont pensés pour s'intégrer harmonieusement dans des cadres de vie privilégiés, comme celui de Baie-Mahault. Ils permettent de tirer le meilleur parti des avantages du lieu, en proposant des aménagements qui répondent à une recherche de qualité de vie et de confort.