
Des plans sur mesure pour votre futur appartement
Parcourez les plans d'appartements idéaux de la Résidence Bel Canto, à Baie-Mahault, pour concrétiser votre vision. Que vous recherchiez un agencement familial, un design moderne, ou un espace optimisé, ces plans s'adaptent à vos aspirations et vous permettent de vous projeter sur votre future propriété.
La conception
BEL CANTO offre une situation exceptionnelle dans un quartier prisé à Baie-Mahault, au coeur de l'archipel. La résidence est située à proximité immédiate des centres commerciaux et de la ZI de Jarry, tout en étant retirée dans un îlot calme et
accueillant, en retrait des axes de circulation.
✅ Découvrez les plans des étages de votre future résidence Bel Canto.

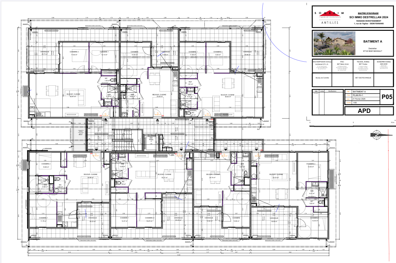
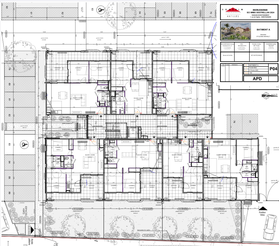
Bel Canto : B
Bel Canto - B : 1er étage
Bel Canto - B : 2e étage

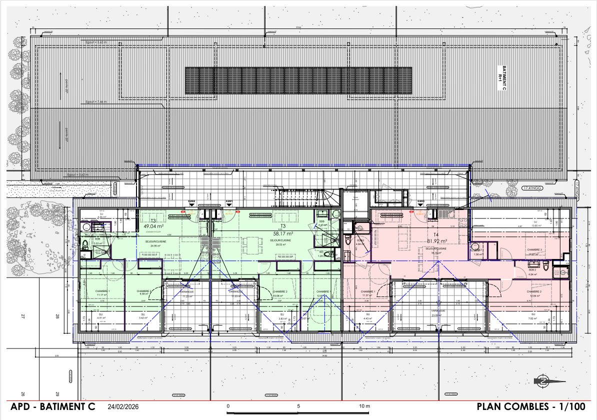
Bel Canto C
Bel Canto - C : RDC
Bel Canto - C : 1er étage
Bel Canto - C : 2e étage

Des plans adaptés à des lieux exceptionnels pour s'épanouir
Nos plans sont pensés pour s'intégrer harmonieusement dans des cadres de vie privilégiés, comme celui de Baie-Mahault. Ils permettent de tirer le meilleur parti des avantages du lieu, en proposant des aménagements qui répondent à une recherche de qualité de vie et de confort.